Obytná zóna Mních v Kriváni
Byty
/
Byt č. B38
No such function oxygen_'title' - pôdorys | Obytná zóna Mních, Kriváň
Radka Tučeková

Radka Tučeková

Realitný maklér

+421 903 527 558

tucekova@renovin.sk

Byt č. B38

Voľný
4. podlažie
181 364 €
v štandarde s DPH
Mám záujem
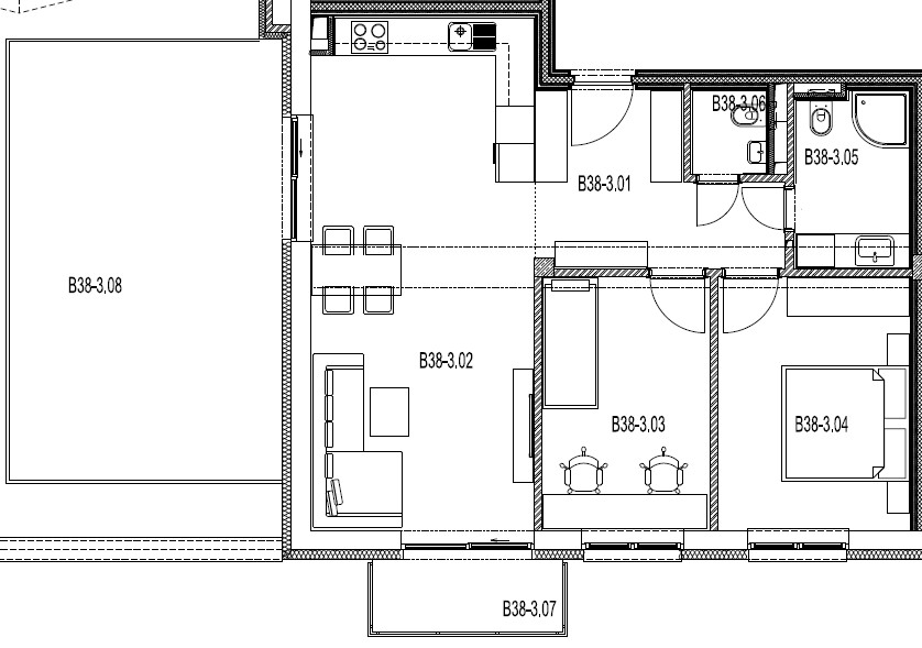
Dispozícia
3+KK
Miestnosť Názov Rozmer
B38-3.01 Chodba 8,74 m²
B38-3.02 Obývacia izba + kuchyňa 28,40 m²
B38-3.03 Izba 10,64 m²
B38-3.04 Izba 12,14 m²
B38-3.05 WC + kúpeľňa 5,07 m²
B38-3.06 WC 1,62 m²
B38-3.07 Balkón 3,45 m²
B38-3.08 Terasa 30,45 m²
Spolu bez balkóna 97,06 m²
Spolu 100,51 m²

Prevedenie bytov

Prevedenie Štandard zahŕňa už hotové podlahy, interiérové dvere, kúpeľňu či WC. Vďaka tomu sa môžete nasťahovať takmer okamžite, bez potreby ďalších stavebných úprav.

Prevedenie Štandard:

Bezpečnostné vchodové dvere

Plastové okná, 3-komorové

Balkónové dvere 3-komorové

Panelové radiátory s termostatickou hlavicou

Zásuvky a vypínače

2x interiérová maľba

Interiérové dvere

Oblôžkové interiérové zárubne s fóliou

Plávajúce podlahy (mimo kúpelne)

Obklad a keramická dlažba v kúpeľni a WC

Sprchovací kút - sklo

Závesné WC

Umývadlo s batériou

Rebríkový kúpeľňový radiátor

Bytový dom Kriváň, 1. etapa

Nádherná lokalita

Obec Kriváň je vstupnou bránou do mikroregiónu Podpoľania, kde je možné navštíviť vyhasnutú sopku Poľana s jej prirodzenou faunou a flórou, alebo sa zoznámiť s ľudovou kultúrou a históriou v okolí Detvy a Poľany. 

V bezprostrednej blízkosti Obytnej zóny Mních sa nachádza základná aj materská škola, vrátane kompletnej občianskej vybavenosti ktorú obec Kriváň ponúka.

Vynikajúca dostupnosť

Pokojné prostredie a čaro blízkosti prírody

Príroda na dosah ruky

Prehľad bytov

Všetko na dosah ruky

Skvelá dostupnosť

Kriváň ponúka ideálnu kombináciu pohodlného bývania a výbornej dostupnosti do okolitých miest. Blízkosť Detvy, Zvolena, Banskej Bystrice či Lučenca zaručuje jednoduchý prístup ku všetkým potrebným službám a pracovným príležitostiam. S priamym napojením na rýchlostnú cestu R2 sa Kriváň stáva strategickým miestom pre pokojné bývanie s rýchlym prístupom do mesta.
5 minút do Detvy
16 minút do Zvolena
25 minút do Lučenca
45 minút do Banskej Bystrice

Občianska vybavenosť

V okruhu 2 – 8 minút chôdze od Obytnej zóny Mních sa nachádza
Materská škola a základná škola
Autobusová a vlaková stanica
Supermarket, obchody a služby
Pošta a obecný úrad
Športový areál
Kostol

Príležitosti pre aktívny život

Len na skok nájdete lesy, lúky a turistické trasy vedúce až na Poľanu, čo ocenia turisti aj rodiny hľadajúce oddych v prírode. Okolie Kriváňa je taktiež rajom pre milovníkov cykloturistiky, hubárčenia či zimných športov. Iba kúsok od obce sa nachádzajú známe výletné miesta – Vodopád Bystré, Kalamárka, hrad Divín či vodná nádrž Ružiná ako aj rezort Masarykov dvor, ideálne na relax počas víkendov.

Objavte atmosféru Obytnej zóny Mních

Projekt realizuje

Renovin / Renovin Reality

Developerom projektu je spoločnosť RENOVIN, dcérska spoločnosť firmy L&Z Čech. 

Tím skúsených odborníkov na inžiniering a prípravu projektov a zaručujeme solídnosť, zodpovednosť a najvyššiu kvalitu pri projektovaní a výstavbe moderných bytov. Medzi naše úspešne zrealizované projekty patria Bytové domy Hájik vo Zvolene a Obytná zóna Mních v Kriváni.

Na trhu pôsobíme už viac ako 20 rokov. Disponujeme rozsiahlymi skúsenosťami v oblasti realít aj developerskej činnosti. Garantom našej práce je profesionálny tím odborníkov a hovoria za nás výsledky i spokojní klienti. Máme za sebou úspešnú realizáciu viacerých developerských projektov a kontinuálne pripravujeme ďalšie.
Tím Renovin RealityRenovin Reality
je exkluzívnym predajcom projektu
Prejsť na web

Napísali o nás

Imrich Paľko

starosta obce Kriváň
"Firma L&Z Čech nám stavia už tretiu bytovku. Dve sú už plne obsadené. Keď sme mali kontrolu zo Štátneho fondu rozvoja bývania, vychválili nás, že je to pekne a kvalitne urobená stavba v porovnaní s inými bytovkami, ktoré v obciach kontrolovali."

p. Naniašová

obyvateľka obecnej bytovky v Kriváni
"Bývame tu už 5 rokov a za tie roky je bytovka stále ako nová, aj byt.“

Martin Schvarc

starosta obce Sebechleby
"Mali sme starý kultúrny dom, ktorý sme potrebovali opraviť a pristaviť k nemu nájomné byty. Teraz v objekte sídli obecný úrad, pošta, obecné nájomné byty a súkromné firmy prenajímajúce si priestory. Je úžasné akú úsporu energií sme po rekonštrukcii dosiahli."

Partneri projektu

Renovin RealityL&Z Čech
Obytná zóna Mních

Kontaktujte nás

+421 901 788 552
projekt@renovin.sk
©2026 Obytná zóna Mních | Developer: Renovin s.r.o.
by Netblue
Mám záujem
carcrossmenucheckmark-circlechevron-right-circle linkedin facebook pinterest youtube rss twitter instagram facebook-blank rss-blank linkedin-blank pinterest youtube twitter instagram